Sites Classificados CM Stand CM Emprego CM Convivio CM Classificados CM

Cortina Header
Imagem Header #1
Imagem Header #1
Imagem Header #2
Imagem Header #3
Imagem Header #4

Apartamentos,  Para Comprar

Preço € 200000,00

Faro, Vila Real de Santo António
Última Actualização há 

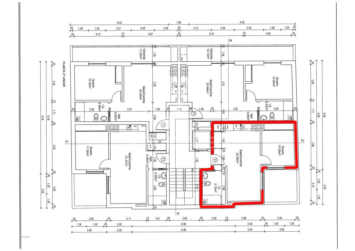
T1 num 1º andar, edifício em construção, central - fracção M
Aproveite esta excelente oportunidade de adquirir um apartamento T1 em planta, num edifício de localização central, que que está em fase inicial de construção e que estima-se estar pronto no prazo de 2 anos. Esta fração (M) está situada no primeiro andar do edifício e está virada a nascente, contando com uma área aproximada de 56 m2 de área bruta e 40 m2 de área útil. A sala conta com uma cozinha integrada toda equipada e o quarto inclui um roupeiro embutido.O edifício localiza-se perto do mercado municipal de Vila Real de Santo António e está a apenas cinco minutos a pé do centro histórico. A praia mais próxima está a cerca de 3 kms e a ponte para Espanha está a cerca de 5 kms. O aeroporto de Faro está a cerca de 50 minutos de distância e o aeroporto de Sevilha a cerca de 1h40m, ambos acessíveis por via rápida.As imagens 3D são apenas ilustrativas e correspondentes a várias fracções do edifício, estando sujeitas a possíveis alterações. Temos mais opções de apartamentos em edifícios em construção neste empreendimento e em outros, sujeito à disponibilidade a cada momento. Não hesite em contactar-nos para mais informações.Predimed Imobiliária, Mediação Imobiliária, Lda.Avenida Brasil 43, 12º Andar, 1700-062 LisboaLicença AMI nº 22503Pessoa Coletiva nº 517 239 345Seguro Responsabilidade Civil: Nº de Apólice RC65379424 Fidelidade

Características / Descrição
  • Área Útil 41.24m2


Divisões
  • Quartos 1


Referência do Anúncio CM08963487IMO
hello@predimed.pt

hello@predimed.ptDenunciar Anúncio
Partilhe esta página
Anunciante Profissional

PREDIMED HELLO


Últimos anúncios Os 10 mais recentes

  • Apartamentos -   
  • Apartamentos -   
  • Apartamentos -   
  • Apartamentos -   
  • Outros -   
  • Apartamentos -   
  • Apartamentos -   
  • Outros -   
  • Apartamentos -   
  • Apartamentos -   
  • Apartamentos -   
  • Apartamentos -