Sites Classificados CM Stand CM Emprego CM Convivio CM Classificados CM

Cortina Header
Imagem Header #1
Imagem Header #1
Imagem Header #2
Imagem Header #3
Imagem Header #4

Apartamentos,  Para Comprar

Preço € 492000,00

Porto, Valongo
Última Actualização há 

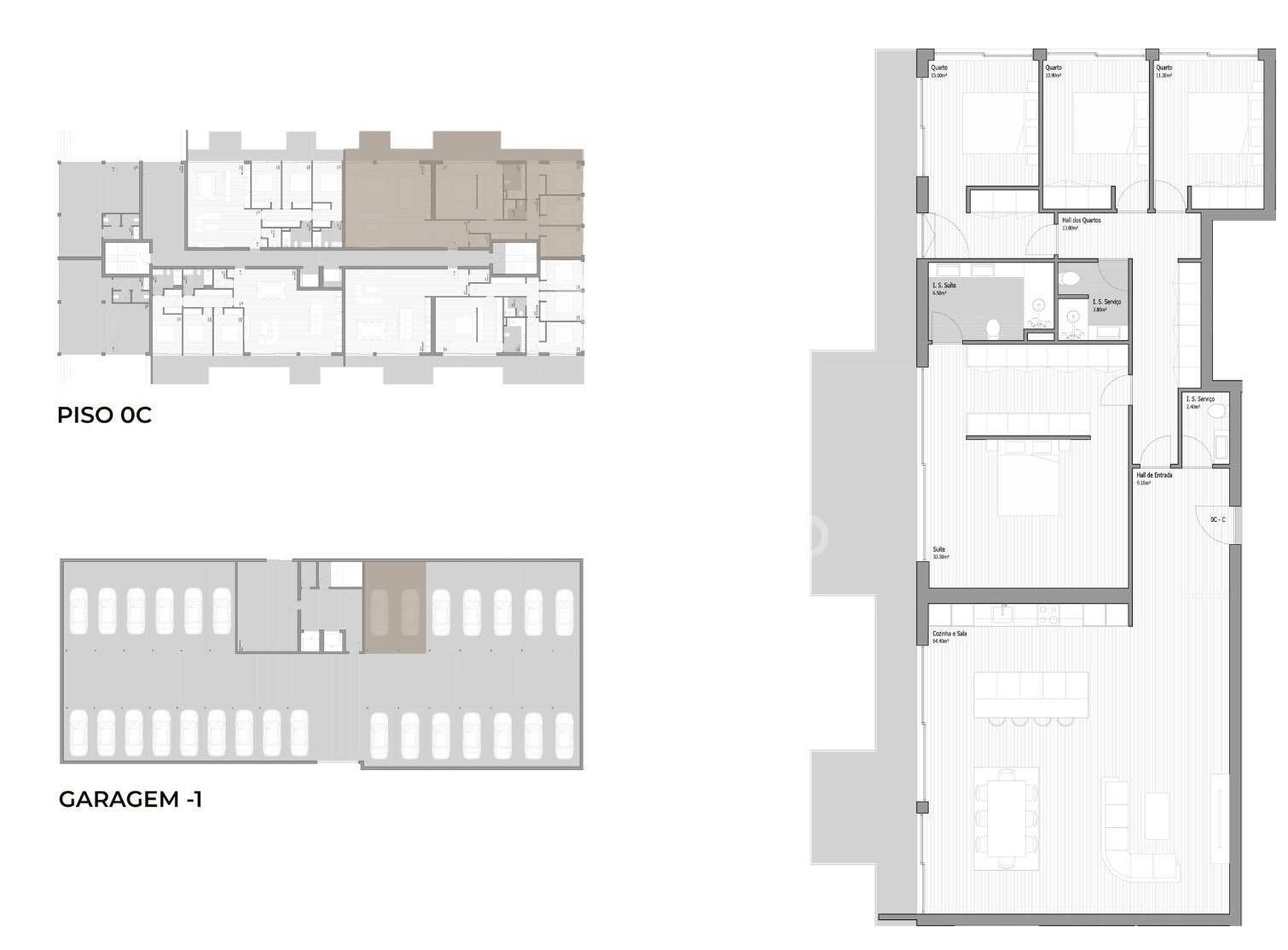
Apartamento T4 | “Valongo Premium” – Valongo, Porto
Apresentamos este excelente apartamento T4 inserido no prestigiado empreendimento “Valongo Premium”, em Valongo, Porto. Um imóvel que se destaca pelo equilíbrio entre o conforto, modernidade e funcionalidade, ideal para quem valoriza qualidade de vida numa localização estratégica.Situado no rés-do-chão, este apartamento é composto por quatro quartos, sendo um deles uma suíte com casa de banho privativa, dois WC de apoio, uma ampla sala de estar e cozinha em conceito “open space”, hall de entrada, varanda e ainda garagem privativa com capacidade para dois automóveis.A data prevista para o início da obra está definida para o dia 1 de abril de 2026.Áreas do Imóvel:Área Bruta de Construção – 194, 5 m2;Área Varandas – 39,5 m2;Área garagem – 52 m2;Área Bruta Acima do Solo – 234 m2;Área Total – 286 m2. Caraterísticas Interiores do Imóvel:Caixilharia exterior em alumínio com vidro duplo;Estores exteriores elétricos;Pré-instalação de Ar Condicionado;Pré-instalação de Aquecimento Central;Cozinha equipada com forno, micro-ondas, placa, exaustor, máquina de lavar louça, máquina de lavar roupa, frigorifico;Instalação elétrica e telefónica completa;Instalação de gás natural. Outros elementos e equipamentos do Imóvel:Elevador no edifício;Instalação de Painéis Solares;Instalação de toalheiros em aço inox e móveis suspensos nas casas de banho;Lugar de estacionamento privativo;Ponto de carregamento para veículo elétrico na garagem;Portões de garagem e de acesso à rua automáticos e motorizados;Intercomunicador com camaria de vídeo na entrada principal do edifício;Sistema de segurança contra incêndios. Localização e Área Envolvente;Este apartamento beneficia de uma localização estratégica, com acessos rápidos e uma envolvente pratica que facilita o dia a dia. Encontra-se a uma curta distância dos principais serviços e pontos de referência da região:a 1 minuto – Câmara Municipal de Valongo;a 3 minutos – Escola Secundária de Valongo;a 5 minutos - Hospital de São Martinho;a 15 minutos – Aeroporto Francisco Sá Carneiro;a 22 minutos – Parque Nascente Shopping;a 30 minutos – do centro do Porto. Esta é a oportunidade de viver num excelente de viver num excelente empreendimento, com acabamentos premium, equipamentos modernos e localização estratégica no Porto, onde cada detalhe foi pensado para conforto e sofisticação.Agenda já a sua visita e descubra o espaço ideal para o seu próximo lar! Predimed Imobiliária, Mediação Imobiliária, Lda.Avenida Brasil 43, 12º Andar, 1700-062 LisboaLicença AMI nº 22503Pessoa Coletiva nº 517 239 345Seguro Responsabilidade Civil: Nº de Apólice RC65379424 Fidelidade

Características / Descrição
  • Estado Novo

  • Área Útil 234.00m2


Divisões
  • Quartos 4


Referência do Anúncio CM08963051IMO
principal@predimed.pt

principal@predimed.ptDenunciar Anúncio
Partilhe esta página
Anunciante Profissional

PREDIMED PRINCIPAL


Últimos anúncios Os 10 mais recentes

  • Apartamentos -   
  • Apartamentos -   
  • Apartamentos -   
  • Outros -   
  • Moradias -   
  • Moradias -   
  • Moradias -   
  • Apartamentos -   
  • Moradias -   
  • Apartamentos -   
  • Apartamentos -   
  • Garagens -