Sites Classificados CM Stand CM Emprego CM Convivio CM Classificados CM

Cortina Header
Imagem Header #1
Imagem Header #1
Imagem Header #2
Imagem Header #3
Imagem Header #4

Prédios,  Para Comprar

Preço € 505000,00

Setúbal, Almada
Última Actualização há 

Oportunidade de Investimento em Lazarim | Alto Potencial de rentabilidade
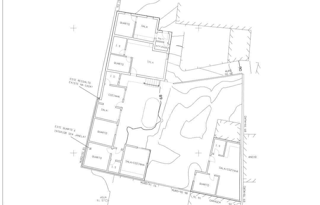
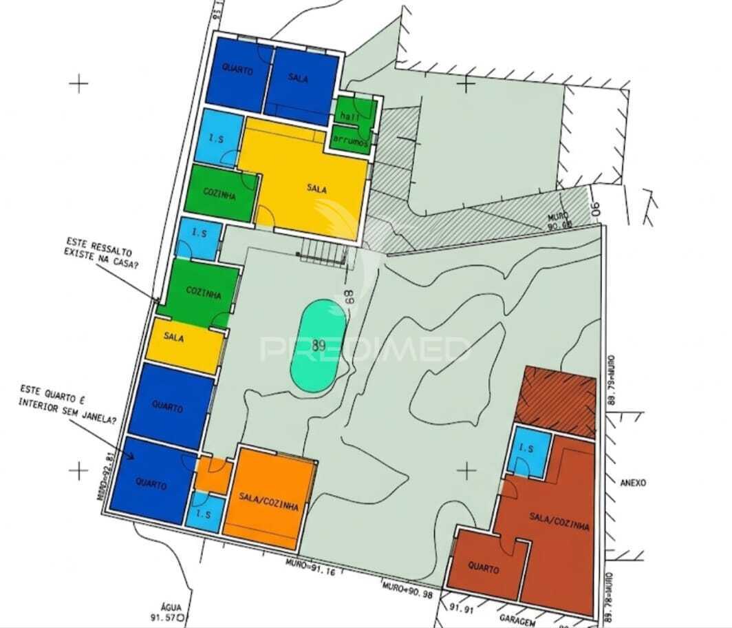
?Localizada na prestigiada zona de Lazarim, Charneca da Caparica, apresentamos uma propriedade com características únicas para investidores que procuram rentabilidade ou projetos de reabilitação num mercado em constante valorização.??Inserida num lote de 484,80 m², a propriedade conta com uma área total de implantação de 130,20 m², atualmente configurada da seguinte forma:?Casa principal (83,90 m²): Dividida em dois apartamentos T1 independentes.Casa secundária (46,30 m²): Configurada como um apartamento T1.?Anexos: Dois anexos adicionais transformados em T1, com acabamentos equivalentes às moradias.?Esta propriedade destaca-se pela sua versatilidade, permitindo o desenvolvimento de um projeto de renovação total, reconstrução ou a regularização urbanística para maximizar o retorno.?Estado Atual: O imóvel é comercializado sem licença de utilização, refletindo-se num preço competitivo e numa excelente margem para valorização pós-intervenção.??Acessos: Proximidade imediata aos acessos para Lisboa e Almada.?Conveniência: Zona servida por comércio, serviços e escolas de referência.?Lifestyle: A poucos minutos das melhores praias da Costa da Caparica.?Maximize o seu capital numa das zonas com maior procura da Margem Sul.Predimed Imobiliária, Mediação Imobiliária, Lda.Avenida Brasil 43, 12º Andar, 1700-062 LisboaLicença AMI nº 22503Pessoa Coletiva nº 517 239 345Seguro Responsabilidade Civil: Nº de Apólice RC65379424 Fidelidade

Características / Descrição
  • Área Útil 130.20m2


Divisões
  • Quartos 15


Referência do Anúncio CM08962560IMO
margemsul@predimed.pt

margemsul@predimed.ptDenunciar Anúncio
Partilhe esta página
Anunciante Profissional

PREDIMED MARGEM SUL


Últimos anúncios Os 10 mais recentes

  • Prédios -   
  • Apartamentos -   
  • Outros -   
  • Apartamentos -   
  • Outros -   
  • Apartamentos -   
  • Terrenos -   
  • Outros -   
  • Apartamentos -   
  • Outros -   
  • Apartamentos -   
  • Moradias -