Sites Classificados CM Stand CM Emprego CM Convivio CM Classificados CM

Cortina Header
Imagem Header #1
Imagem Header #1
Imagem Header #2
Imagem Header #3
Imagem Header #4

Outros,  Para Comprar

Preço € 630000,00

Porto, Gondomar
Última Actualização há 

Terreno com PIP Aprovado para 24 Fogos – Zona ARU – S. Pedro da Cova, Gondomar
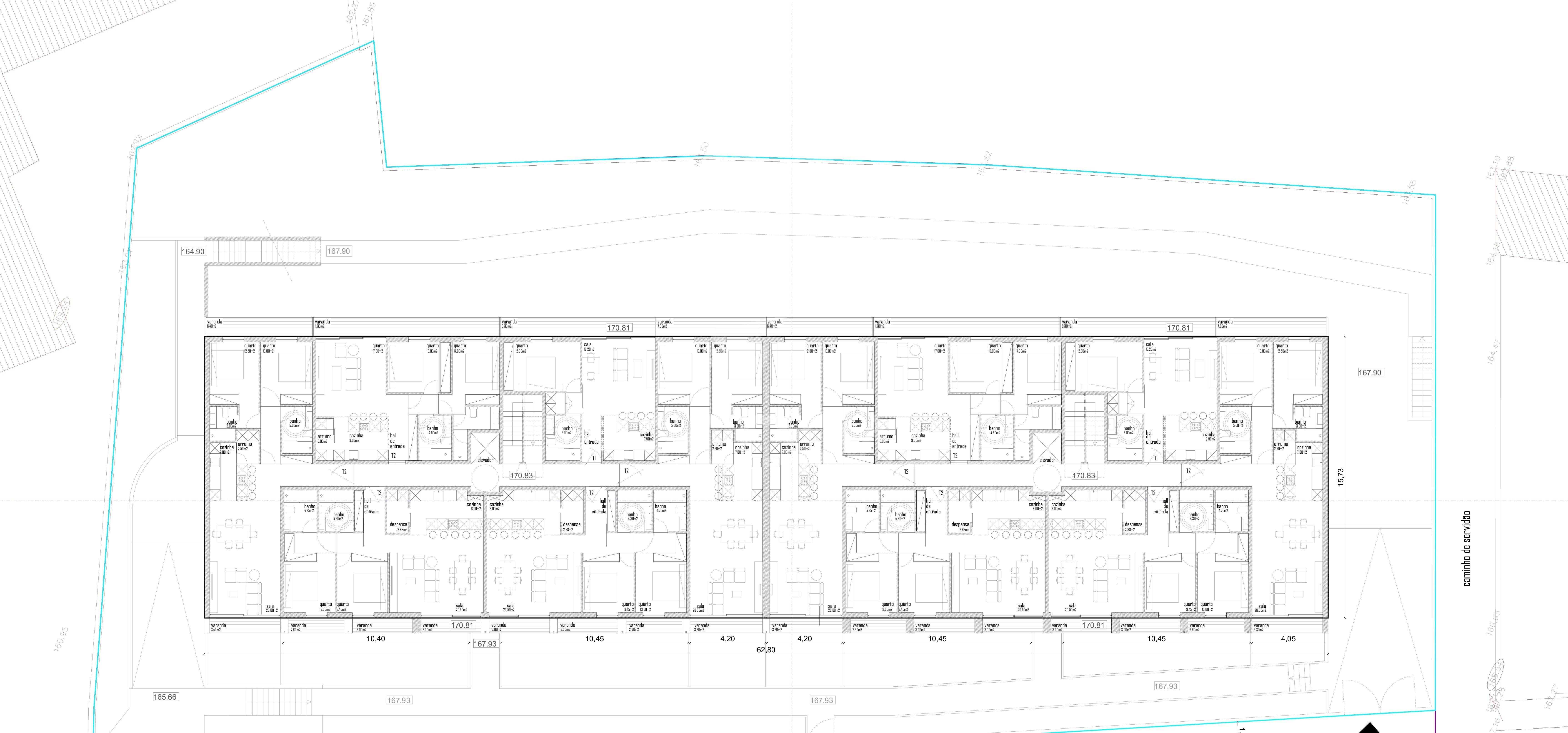
Excelenteoportunidade de investimento em São Pedro da Cova, na Rua das Mimosas, Lugar daEverdosa, com PIP aprovado em 24/02/2026 pela Câmara Municipal de Gondomar, paraconstrução de habitação multifamiliar Inseridoem Zona ARU (Área de Reabilitação Urbana), com benefícios fiscais e fortepotencial de valorização ProjetoAprovado:24 fogoshabitacionais4apartamentos T120apartamentos T246 lugaresde garagemNúmero depisos acima da cota de soleira: 2Número depisos abaixo da cota de soleira: 1Altura daedificação: 8,72 mModa dealtura da fachada: 5,82 m Áreas:Área totaldo terreno: 2.850 m²Frente derua: 72 metrosÁrea deimplantação: 1.112,72 m² (1.132,72 m² incluindo compartimento de resíduos)Área brutade construção: 1.975,68 m² (2.003,58 m² incluindo sala de condomínio)Volumetria:5.749,23 m³Área decave: 1.107,80 m² Localizaçãoe Acessos:A 3minutos da Estrada D. MiguelA 12minutos do centro de GondomarA 13minutos de Rio TintoA 15minutos de Santa RitaAproximadamente a 20 minutos do PortoZona bemservida de acessos rodoviários, permitindo ligação rápida às principais vias daárea metropolitana.Envolvente:Proximidadea comércio local e grandes superfíciesTransportespúblicos nas imediaçõesServiçosessenciais (farmácias, bancos, restauração)Escolas eequipamentos educativosZonaresidencial tranquila, em crescimento e requalificação Destaquesdo Investimento: PIP aprovado – redução de risco e rapidez noarranque da obraInseridoem Zona ARUProjetootimizado com tipologias de elevada procura (T1 e T2)Excelenterelação entre número de fogos e lugares de estacionamento Ideal parapromotores que procuram um projeto pronto a avançar numa zona com elevadaprocura habitacional. Predimed Imobiliária, Mediação Imobiliária, Lda.Avenida Brasil 43, 12º Andar, 1700-062 LisboaLicença AMI nº 22503Pessoa Coletiva nº 517 239 345Seguro Responsabilidade Civil: Nº de Apólice RC65379424 Fidelidade

Características / Descrição
  • Área Útil 1975.68m2


Referência do Anúncio CM08963848IMO
latina@predimed.pt

latina@predimed.ptDenunciar Anúncio
Partilhe esta página
Anunciante Profissional

PREDIMED LATINA


Últimos anúncios Os 10 mais recentes

  • Apartamentos -   
  • Apartamentos -   
  • Apartamentos -   
  • Apartamentos -   
  • Apartamentos -   
  • Outros -   
  • Apartamentos -   
  • Apartamentos -   
  • Quartos -   
  • Moradias -   
  • Apartamentos -   
  • Apartamentos -