Sites Classificados CM Stand CM Emprego CM Convivio CM Classificados CM

Cortina Header
Imagem Header #1
Imagem Header #1
Imagem Header #2
Imagem Header #3
Imagem Header #4

Apartamentos,  Para Comprar

Preço € 125500,00

Santarém, Alcanena
Última Actualização há 

Apartamento T1 – Em Fase Final de Construção
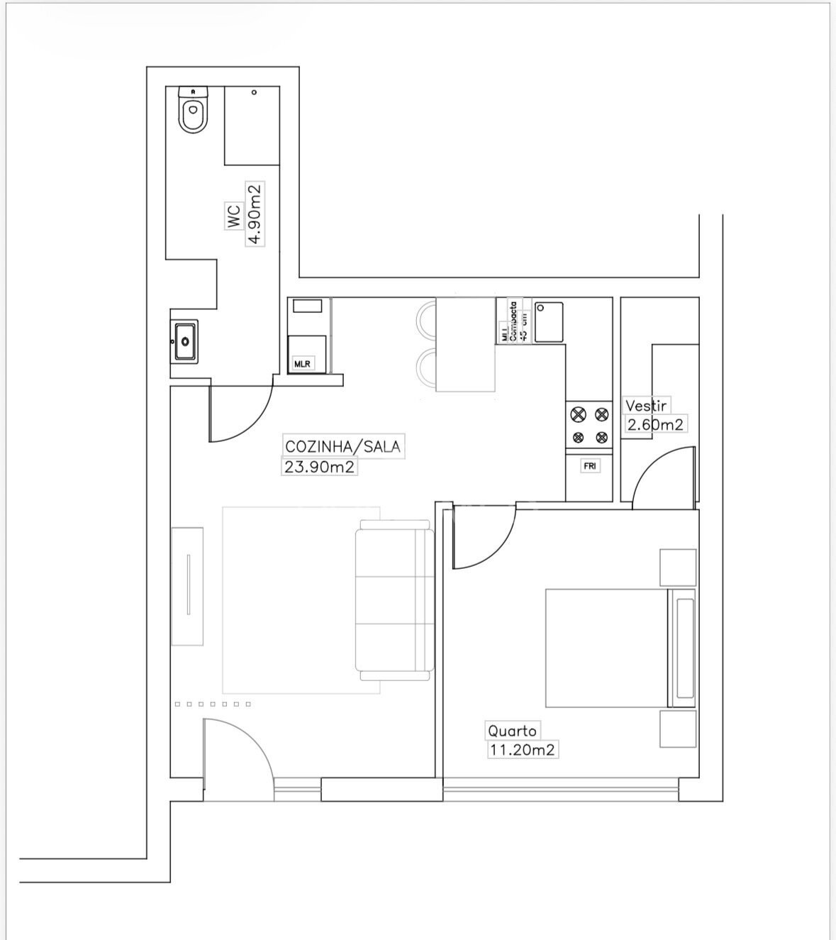
Apartamento T1 – Rés do Chão | Em Fase Final de ConstruçãoÁrea:• 47 m² de área habitávelCaracterísticas principais:• Rés do chão, com excelente acessibilidade• Cozinha e sala em conceito funcional e moderno• Cozinha totalmente equipada• 1 quarto com pequeno closet• Casa de banho completa• Pequeno espaço de arrumos• Ar condicionado instalado•Termo acumulador para aquecimento de águasEdifício e envolvente:• Prédio bastante calmo• Lugares de estacionamento à porta• Zona próxima de supermercados, bombeiros, escolas, jardins e zona desportiva• Excelentes acessos à autoestradaEstado da obra:• Em fase final de construção• Escritura prevista para o início do mês de MaioIdeal para habitação própria ou investimento, numa zona prática e com tudo o que precisa no dia a dia.Marque já a sua visita!Predimed Imobiliária, Mediação Imobiliária, Lda.Avenida Brasil 43, 12º Andar, 1700-062 LisboaLicença AMI nº 22503Pessoa Coletiva nº 517 239 345Seguro Responsabilidade Civil: Nº de Apólice RC65379424 Fidelidade

Características / Descrição
  • Área Útil 47.00m2


Divisões
  • Quartos 1


Referência do Anúncio CM08961987IMO
villaportodemos@predimed.pt

villaportodemos@predimed.ptDenunciar Anúncio
Partilhe esta página
Anunciante Profissional

PREDIMED VILLA PORTO DE MÓS


Últimos anúncios Os 10 mais recentes

  • Outros -   
  • Apartamentos -   
  • Apartamentos -   
  • Lojas -   
  • Garagens -   
  • Moradias -   
  • Lojas -   
  • Apartamentos -   
  • Moradias -   
  • Apartamentos -   
  • Moradias -   
  • Terrenos -