
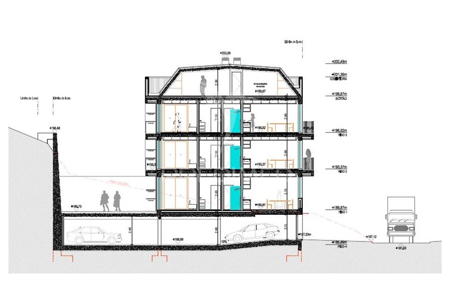
Área Útil 582.00m2


Preencha o seguinte formulário para contactar o vendedor. Enviaremos um e-mail com a sua mensagem.
O anúncio Outros, Para Comprar (Classificado em Outro) foi adicionado à sua lista de Favoritos, para que o possa consultar posteriormente.
O que pretende fazer em seguida ?
Ver Favoritos Continuar a Navegar×Para adicionar o anúncio Outros, Para Comprar aos seus favoritos é necessário efectuar o login com a sua conta.
O que pretende fazer em seguida ?
Registo/Login Continuar a Navegar×