
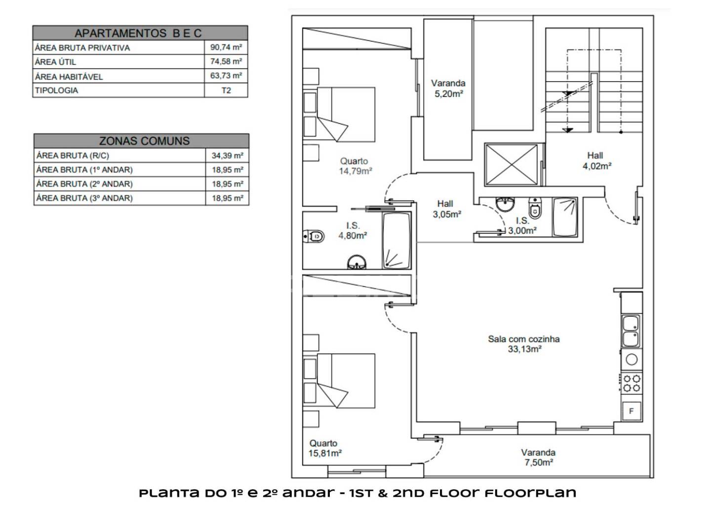
Área Útil 68.91m2
Quartos 2


Preencha o seguinte formulário para contactar o vendedor. Enviaremos um e-mail com a sua mensagem.
O anúncio Apartamentos, Para Comprar (Classificado em Apartamento) foi adicionado à sua lista de Favoritos, para que o possa consultar posteriormente.
O que pretende fazer em seguida ?
Ver Favoritos Continuar a Navegar×Para adicionar o anúncio Apartamentos, Para Comprar aos seus favoritos é necessário efectuar o login com a sua conta.
O que pretende fazer em seguida ?
Registo/Login Continuar a Navegar×