Sites Classificados CM Stand CM Emprego CM Convivio CM Classificados CM

Cortina Header
Imagem Header #1
Imagem Header #1
Imagem Header #2
Imagem Header #3
Imagem Header #4

Apartamentos,  Para Comprar

Preço € 280000,00

Porto, Vila Nova de Gaia
Última Actualização há 

Apartamento | “Gaia Premium” – Gaia, Porto
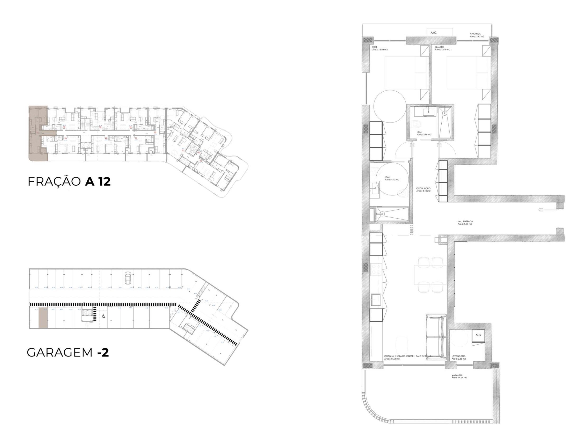
No coração de Vila Nova de Gaia, integrado na prestigiada Área Metropolitana do Porte, nasce o “Gaia Premium” - um empreendimento moderno que se distingue pela sua elegância e atenção ao detalhe. Um projeto concebido para proporcionar uma experiência habitacional de excelência, que alia conforto, funcionalidade e sofisticação num só lugar.Situado no primeiro andar, este elegante apartamento T2 dispõe de dois quartos, sendo um deles uma suíte com WC privativo, um WC de apoio, uma ampla sala de estar e jantar em ligação com a cozinha em conceito “open space”. Dispõe ainda de hall de entrada, lavandaria, varanda e garagem aberta para um automóvel.Àreas do Imóvel:Área Total – 86,4 m2;Área Bruta Acima do Solo – 105, 0 m2;Área Bruta da Varanda – 18,6 m2;Caraterísticas Interiores do Imóvel:Caixilharia em alumínio com sistema de correr;Estores exteriores de enrolar com isolamento térmico;Instalação de Ar Condicionado;Bomba de Calor para aquecimento das águas sanitárias;Seca-toalhas elétrico;Orientação solar: Nascente/Norte/Poente;Cozinha equipada com forno elétrico, placa de vitrocerâmica e exaustor;Outros Elementos e equipamentos do ImóvelEstacionamento privativo;Garagem com portões automáticos e motorizados;Intercomunicador e câmara de vídeo na entrada principal do edifício;Elevador elétrico;Campo de padel. Localização e Área envolvente Localizado numa zona privilegiada de Vila Nova de Gaia, este imóvel beneficia de uma envolvente valorizada, com acesso rápido todos os serviços essenciais e às principais vias rodoviárias. Uma localização que alia conveniência com a proximidade a alguns dos pontos mais emblemáticos da região a 4 minutos – Escola Básico da Outeiro;a 7 minutos – Gaia Shopping;a 7 minutos – Centro Hospitalar de Vila Nova de Gaia;a 8 minutos - Ponte Luís I;a 9 minutos – Estádio do Dragão:a 20 minutos – Aeroporto Francisco Sá Carneiro Mais do que uma habitação, este apartamento representa uma escolha segura para quem valoriza qualidade de vida, conforto e localização estratégica — seja para residência própria ou investimento. Não perca esta oportunidade única — venha descobrir o “Gaia Premium” e agende já a sua visita.Predimed Imobiliária, Mediação Imobiliária, Lda.Avenida Brasil 43, 12º Andar, 1700-062 LisboaLicença AMI nº 22503Pessoa Coletiva nº 517 239 345Seguro Responsabilidade Civil: Nº de Apólice RC65379424 Fidelidade

Características / Descrição
  • Estado Novo

  • Área Útil 86.00m2


Divisões
  • Quartos 2

  • Parqueamentos 1


Referência do Anúncio CM08963256IMO
principal@predimed.pt

principal@predimed.ptDenunciar Anúncio
Partilhe esta página
Anunciante Profissional

PREDIMED PRINCIPAL


Últimos anúncios Os 10 mais recentes

  • Lojas -   
  • Moradias -   
  • Terrenos -   
  • Apartamentos -   
  • Apartamentos -   
  • Moradias -   
  • Outros -   
  • Apartamentos -   
  • Apartamentos -   
  • Apartamentos -   
  • Apartamentos -   
  • Apartamentos -