Sites Classificados CM Stand CM Emprego CM Convivio CM Classificados CM

Cortina Header
Imagem Header #1
Imagem Header #1
Imagem Header #2
Imagem Header #3
Imagem Header #4

Apartamentos,  Para Comprar

Preço € 250000,00

Santarém, Entroncamento
Última Actualização há 

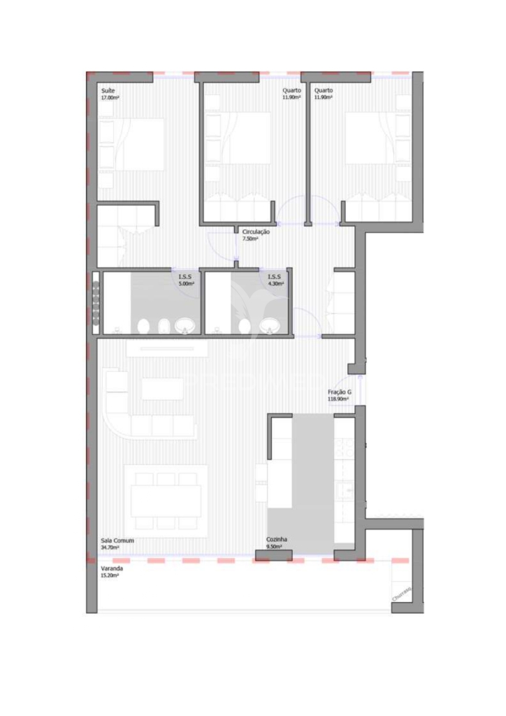
Apartamento T3 - EntroncamentoApartamento T3 - 3º Andar - Fração G* Apartamento T3 emnovo empreendimento de design contemporâneo no EntroncamentoDescubra este moderno apartamento T3 inserido num novoempreendimento, a ser edificado, na zona Sul do Entroncamento, na Freguesia deSão João Baptista, numa área residencial consolidada e tranquila, próxima decomércio, serviços, escolas e hospital. A estação da CP fica a apenas 10minutos a pé ou 5 minutos de carro, garantindo excelente mobilidade.O edifício, servido por elevador, conta com quatropisos habitacionais, com apenas duas frações por piso, e uma cave com oito garagensindividuais — uma delas pertencente a este apartamento.-? Interior moderno efuncional: este apartamento destaca-se pelo seu design apelativo eacabamentos de qualidade, sendo composto por: 3 quartos com roupeiros embutidos, sendo um deles em suíte 2 casas de banho Sala comum espaçosa Cozinha funcional Zona de circulação/distribuição bem organizada* Espaço exterior paradesfrutar: a ampla varanda, equipada com churrasqueira, convida amomentos de lazer ao ar livre e refeições em família.? Qualidade de vida eoportunidade de investimento: viva com conforto e estilo num imóvel pensadopara o seu bem-estar. Aproveite o preço especial de lançamento e antecipe-se àvalorização futura.* Calendário da obra Início previsto da construção: 15 de outubro de 2025 Conclusão prevista: 14 de outubro de 2027Predimed Imobiliária, Mediação Imobiliária, Lda.Avenida Brasil 43, 12º Andar, 1700-062 LisboaLicença AMI nº 22503Pessoa Coletiva nº 517 239 345Seguro Responsabilidade Civil: Nº de Apólice RC65379424 Fidelidade

Características / Descrição
  • Área Útil 101.80m2


Divisões
  • Quartos 3

  • Parqueamentos 1


Referência do Anúncio CM08956095IMO
predimed.prime@predimed.pt

predimed.prime@predimed.ptDenunciar Anúncio
Partilhe esta página
Anunciante Profissional

PREDIMED PRIME


Últimos anúncios Os 10 mais recentes

  • Apartamentos -  T1,  
  • Moradias -   
  • Apartamentos -   
  • Moradias -   
  • Apartamentos -   
  • Outros -   
  • Apartamentos -   
  • Apartamentos -   
  • Outros -   
  • Apartamentos -   
  • Outros -   
  • Apartamentos -